井原市移住定住ポータルサイト 井原市移住定住ポータルサイト

空き家・空き農地バンク

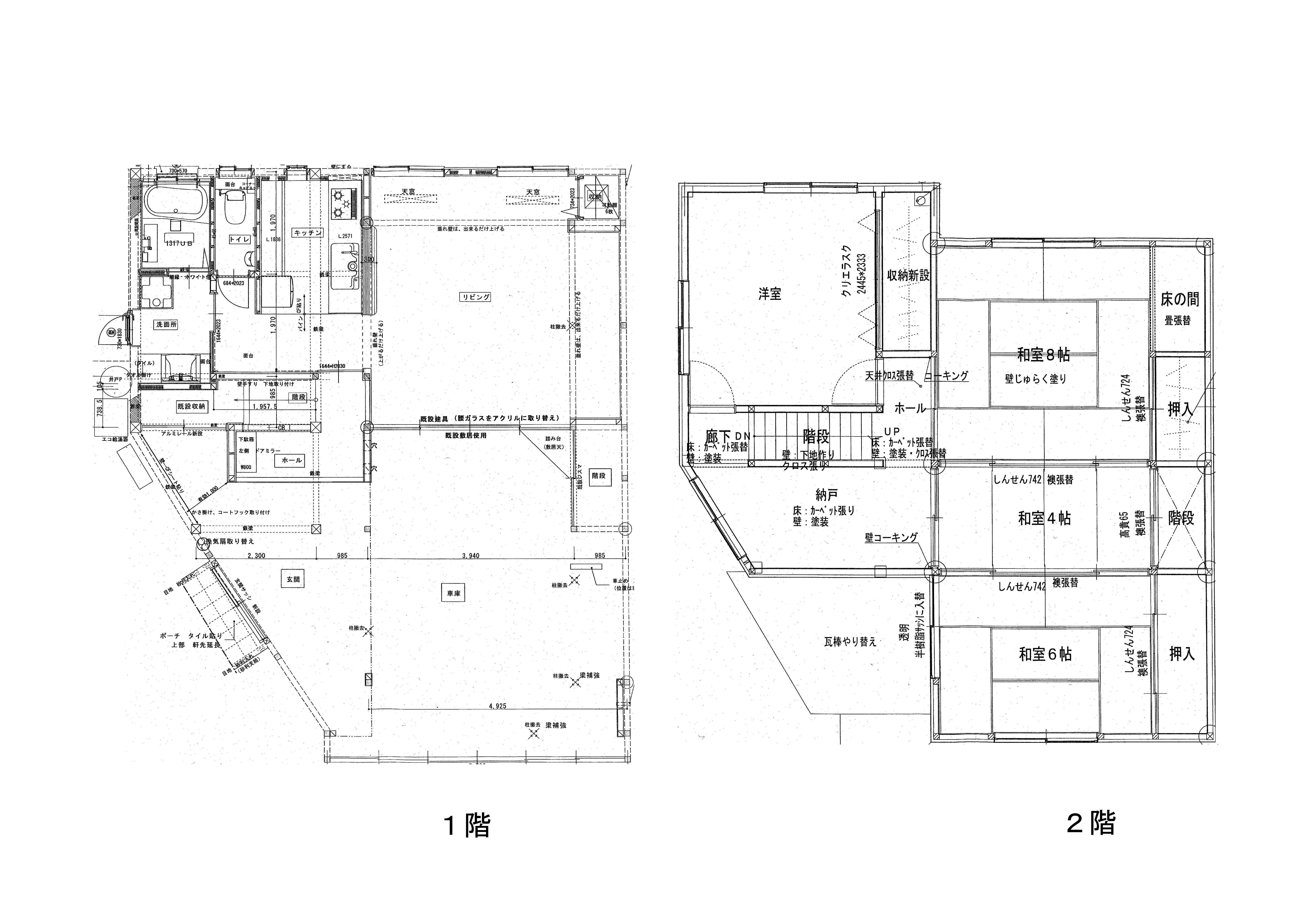
house

  • 最終更新日:2026.03.12

登録No.B0283

所在地

井原市高屋町

価格

600万円

建築構造

木・鉄骨造かわらびき3階建

付帯施設

車庫(普通車1台・軽四1台)兼倉庫

築年数

不詳

物件の設備

水道:有

電気:有

ガス:IH(オール電化)

トイレ:水洗(下水道)

風呂:電気温水器

補修

必要(小規模)

空き家になった時

令和元年7月頃

その他

平成28年リフォーム
ガラス戸1枚割れあり(契約時に交換予定)

周辺情報

保育園・幼稚園・学校 保育園 0.7km
幼稚園 0.5km
小学校 1.1km
中学校 0.3km
スーパー

1.3km

市民病院

4.9km

地域関連記事

article